Competition: Extension elderly home St. Anna in Steg (3rd prize)

Our proposal for the extension of the elderly home “Haus der Generationen St. Anna” in Steg was awarded 3rd prize. Developed in collaboration with Kesküla Erard Architecture du Paysage, the project not only includes the design of the new extension but also proposes a vision for the future development of the village centre.

House in Winkel

In collaboration with Saina Nicolet Architektur.
Located in a village overlooking the airport of Zurich, the project consists of a concrete basis placed in a gentle slope. An open wooden structure develops over two floors, creating a sequence of rooms facing every side of the building lot.

Competition: School complex in Münchenbuchsee (3rd prize)

In collaboration with 0815 Architekten and Maurus Schifferli Landschaftsarchitekt. Our proposal for the extension of the school complex Bodenacker was awarded with the 3rd prize. The project was part of a selective competition recently concluded.

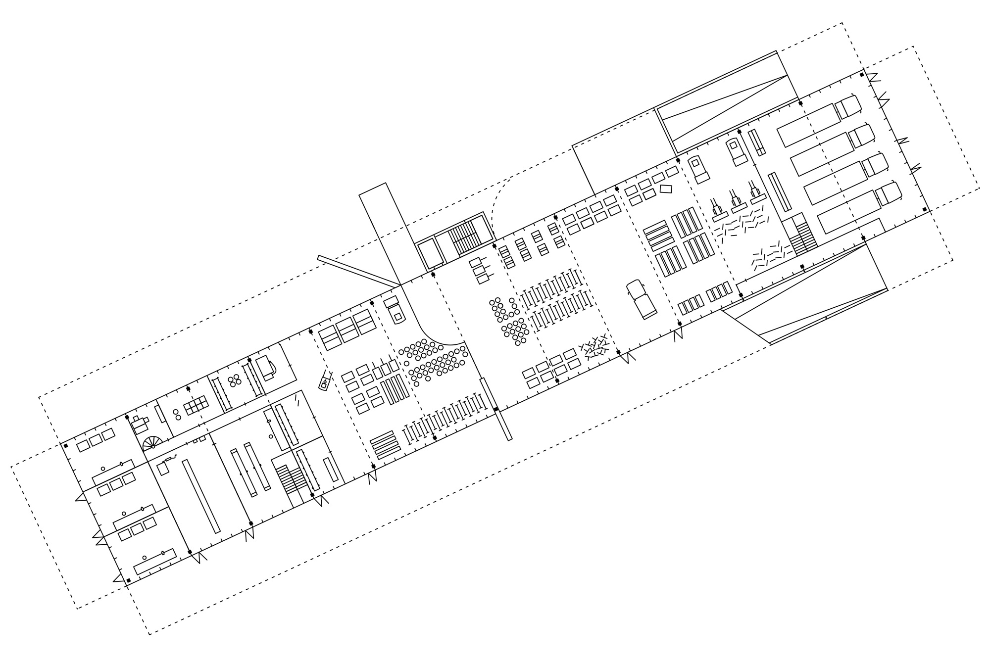
Competition: School complex in Spiez

Competition: School complex in Spiez

In collaboration with Atelier Summermatter Ritz and Maurus Schifferli Landschaftsarchitekt. The project was part of a selective competition.

Catalog of the exhibition "Swiss Visions" by the Japan Swiss Architectural Association (JSAA)

Exhibition in Tokyo, organized by the Japan Swiss Architectural Association (JSAA)

We are very happy to be part of a group exhibition in Tokyo, Japan. The exhibition by the JSAA is called "Swiss Visions - A New Generation of Architectural Expression" and includes four emerging Swiss offices: BYJUNG / Truwant+Rodet+ / WALDRAP / Weyell Zipse. Supported by the Swiss Embassy in Japan and Vitality Swiss, the exhibition runs at the Axis Gallery in Roppongi, from March 29th to April 14th 2024.

Competition: Gymnastic Hall in Ostermundigen

A wooden construction placed on a visible concrete basis.
Originating at the perimeter of the sport fields, a repetitive and efficient raster of standard wooden pillars (24x24cm) becomes the the primary structure of the building. In four specific points, the normal pillars are replaced by round, massive wooden pillars. These representative elements characterise important spatial situations and, functionally, become a simple orientation tool for the visitors. Bracing crosses in metal stabilise the structure horizontally; they are applied on the construction in an additive way.

Publication in Architecture Suisse (AS228)

House on a Slope is published in the magazine Architecture Suisse (AS228).

Competition: entry for the Design Biennale Zürich 2023

Renovation in Friedweg, Biel/Bienne

Renovation of a three storey house from the ’30s. The ground floor expends to the garden with large concrete basis. Inside, the division walls are removed to create an open space: an area for all the inhabitants of the house. A pattern of different floors characterise and structures the new common space.

Competition: Werkhof in Wil (5th prize)

Competition: entry for the Swiss Pavilion at the 2023 Venice Biennale

In collaboration with the architecture office GrilloVasiu, art historian and curator Sandra Bradvic, philosopher and psychologist Matteo Vegetti.
We envision a domestic environment that can meet a multiplicity of activities, developing the ability to transform and adapt itself. A tolerant space to meet the multilayered and constantly changing needs of the contemporary life. To reflect this topic, we propose a 1:1 installation in the Swiss Pavilion, representing the domestic space.

Proposal for a fireplace in Grindelwald

Competition: Werkhof in Wil (5th prize)

In collaboration with Notaton AG.
Our proposal for the new Operation Center of the city of Wil (Neubau Werkhof St. Gallerstrasse in Wil, SG) was awarded with the 5th prize. The project was part of an open competition recently concluded.

Study for a single-family house

Publication in Modulor 06/21

House on a Slope is published for the first time in the December 2021 issue of Modulor magazine. Text by Theresa Mörtl, photographs by Bela Zwygart.

House on a Slope

Group exhibition @ Forum Stadtpark, Graz

We are happy to be part of a group exhibition about "models" in Graz. Opening tonight, 23 September - 2 October 2021.

House on a slope

House on a Slope

Competition: Multifunctional Center STCA Ingrado in Bellinzona

Above ground, the building hosts semi-public spaces, offices and small apartments. In these floors, perimeter brick walls and a central concrete corridor provide linear supports with reduced static spans.
At the ground floor the corridor is replaced by two inclined metal pillars; in the basement, they allow an efficient organisation of the parking garage.

House on a Slope

The construction reached the upper floor, where the first concrete walls were cast. Through a side window the light flows in the long corridor in the back of the building.

Lecture @ TU Munich on May 10th !

We are giving an online lecture for the "Montagsreihe" of the TU Munich. You can find more informations and the Zoom link to the lecture by clicking "see more".

House on a Slope

House on a Slope

After a quick design process, we are happy to start the construction site of «House on a slope». The old building present on the lot was demolished until its base. The existing concrete volume - including entrance's foyer, garage, cellar and technical rooms - is kept unchanged. On top, we are placing a new two story building out of concrete and wood.

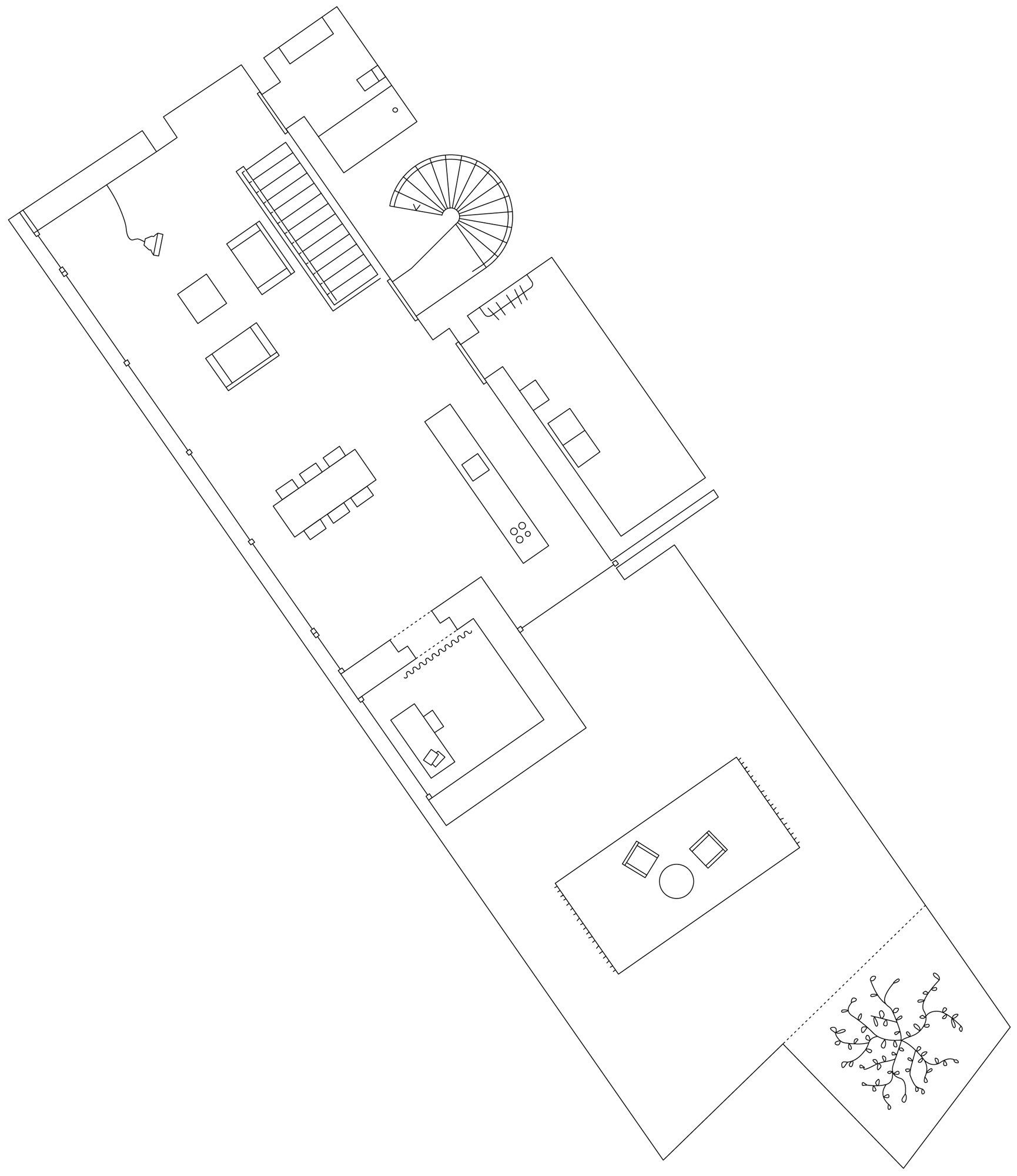
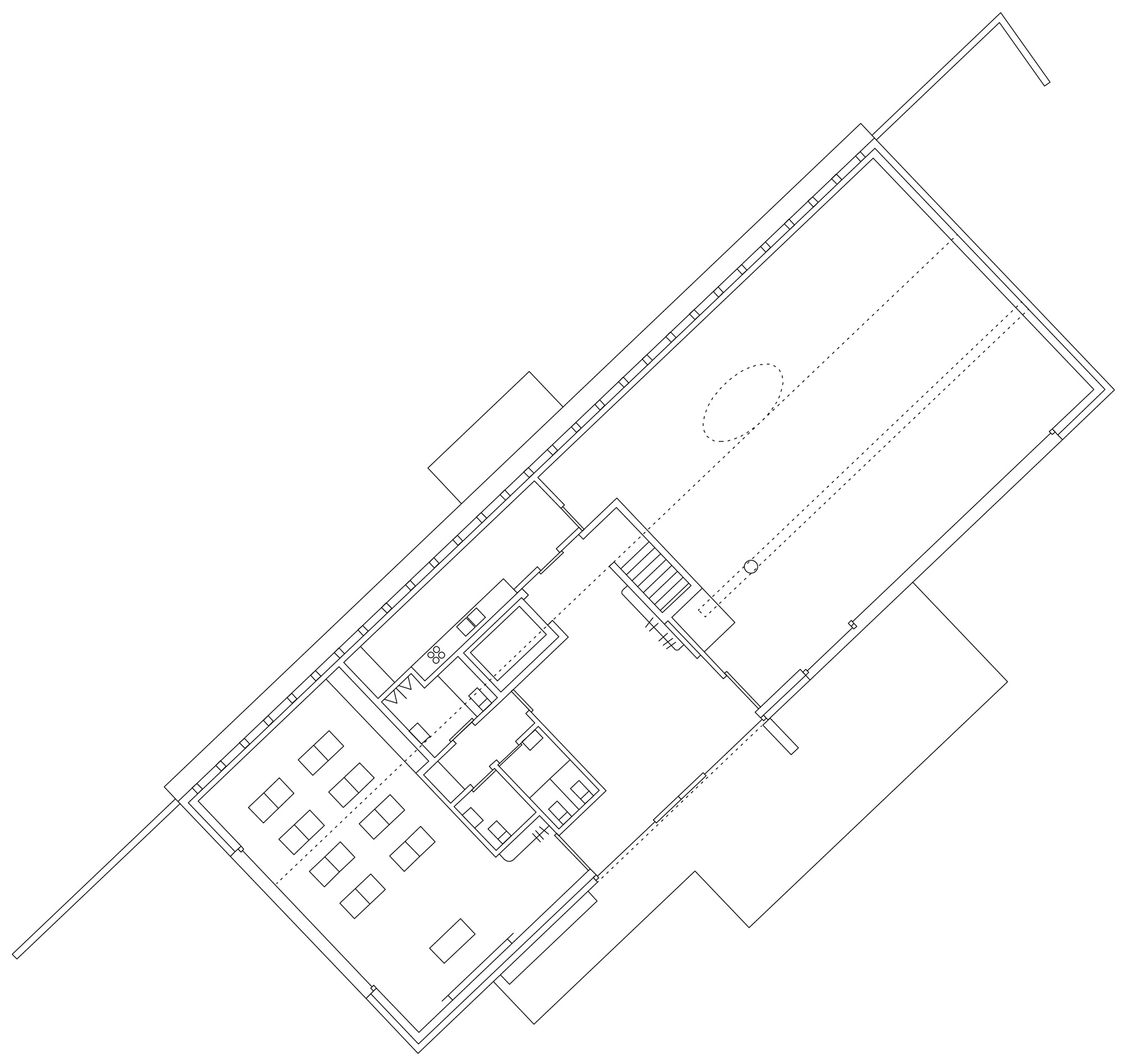
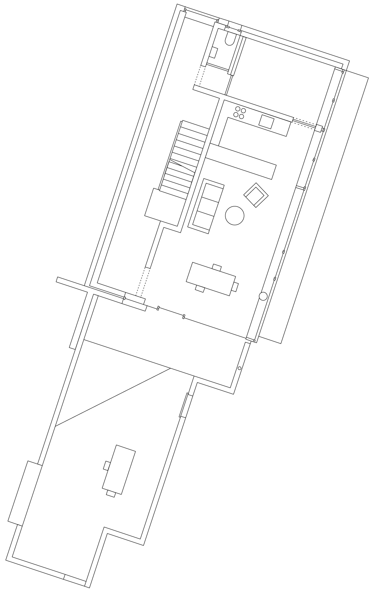
House with a Blue Room

House with a Blue Room

Excerpt from an interview on JAS, by Werk Bauen + Wohnen: «Unterhalb der Plattform, eingebettet im Hang, liegt ein rund 30 Meter langes Wohngeschoss. Mit dem Hinabsteigen verschwindet der Bezug zur Strasse und der unmittelbaren Umgebung. Der Raum hat privaten und schützenden Charakter. Die überraschende Grösse resultiert aus dem systematischen Rückbau sämtlicher nichttragender Bauteile. Die abgetreppte Kontur der Rückwand verdeutlicht die langgezogene Geometrie und verbindet den beheizten Innen- mit dem gedeckten Aussenbereich. Die Südfassade ist durchgehend geöffnet und zur Hälfte verglast, mit Sicht über den Lago di Lugano. Die wechselnden Wetterlagen prägen und verändern den Raum. Ein komplett blau gestrichenes Volumen gliedert den Hauptraum in unterschiedliche Bereiche und bildet ein Zentrum und einen Rückzugsort mit klarer Geometrie und diffusen Konturen. Hier tritt die Architektur zurück und es bleibt die Präsenz des Fernblicks, der Umgebung. Das darunterliegende Geschoss ist über eine interne Treppe erreichbar und verfügt über drei Schlafzimmer.»

Competition: Multifunctional Tower in Baden

A windowsill running along the perimeter characterise the space of the apartments area in the tower. In addition, this element solves issues related to the building structure and the fire regulations.

Publication in JAS

By JUNG is portrayed on the platform JAS - Junge Architektur Schweiz - by Werk Bauen + Wohnen. Beside taking the chance to publish for the first time the project «House with a blue room», the publication includes a short interview. Here is an excerpt: «Wir wollen Gebäude entwerfen und bauen, die einen individuellen Charakter haben und dadurch gegenüber dem Ort und der Aufgabe eine klare Haltung zeigen. Wir glauben, dass gute Architektur weder vom Budget abhängig ist noch von der baulichen Aufgabe und auch nicht vom Ort. Jede Aufgabe hat ihren eigenen Inhalt und ihre spezifischen Anforderungen. Diese wollen wir ergründen und möglichst genau benennen. Hier setzen wir den Fokus und beginnen unseren Arbeitsprozess. Die passende Lösung muss erfunden oder zumindest gesucht werden. Wir suchen inhaltlich und formal nach Themen, die das Gebäude gesamthaft prägen und ihm seine eigene Identität verleihen. Nebst den praktischen und funktionalen Anforderungen wollen wir die Instinkte und Emotionen der Menschen anregen. Deshalb spielen für uns räumliche Aspekte schon früh in der Entwicklung eine zentrale Rolle. Dabei untersuchen wir, wie man sich im Haus bewegt und was dabei wahrgenommen wird. Hier spielen Formen, Farben, Materialien, der Bezug zur Umgebung und zum gesamten Haus eine wichtige Rolle. Jedes Gebäude ist letztendlich eine Gesamtkomposition, die langfristig Freude bereiten soll.»

Publication in Werk, Bauen + Wohen

House with a Blue Room

Talk in Brig, Valais

We were invited by Werk, Bauen + Wohnen to take part in a conversation about the networks between young architects in Switzerland. The talk will be part of the next January/February issue. Thanks to Thomas Summermatter, Diana Zenklusen, Daniel Giezendanner and Roland Züger for the nice evening.

Competition: Multifunctional Tower in Baden

Lecture @Virginia Tech in Riva San Vitale next week !

House with a Blue Room

Auf Strassenniveau gibt es keine Hinweise auf ein Haus. Gebaut ist nur eine befahrbare Plattform aus Beton mit einer runden Aussparung, aus der das obere Ende einer Spindeltreppe hinausragt. Die Treppe ist zugleich Erschliessung und Vorraum für das darunterliegende Haus. Eine schlanke Säule mit rotem Anstrich steht symbolisch für das «fehlende» Haus und schafft eine formale Verbindung zum Innenraum.

Competition: Multifunctional Tower in Baden

An open floor looking over the surrounding city offers a space for recreation to the inhabitants of the tower.

Competition: Multifunctional Tower in Baden

Placed along a main street leading into Baden, the multifunctional tower marks the limit between the agglomeration an the city center. The lower part of the building relates to the urban structure, offering flexible spaces for offices and various public functions. With its top part, fitting 11 floors of apartments, the 70m high tower acts as a new landmark for the city. An open floor marks the gap between the two parts of the tower, offering a space for recreation to the inhabitants.

Remodeling in White

A photograph of the completed building. Placed without an apparent order, several structural elements characterise the ground floor. To fully understand the system is necessary to experience the whole, three story house.

Competition: Community Center in Manno

Competition entry for a new Town Hall in the little village of Manno, in Ticino. The building is placed on a white concrete basis; a public plaza that defines the entrance of the village.

House with a Blue Room

Color samples for the «blue room». With the use of colours is possible to establish a very direct, spatial clarity in the most important spaces of the project.

House with a Blue Room

Competition: Swiss Pavillion for the 17th Biennale di Venezia

Competition: Gymnastic Hall in Davos

Competition: Gymnastic Hall in Davos

Remodeling in White

A photograph of the completed building. The laundry room in the ground floor, with one of the structural elements that characterise the project.

Competition: Swiss Pavillion for the 17th Biennale di Venezia

Competition: Swiss Pavillion for the 17th Biennale di Venezia

The economic use of the land and the aim to build densely are fundamental principles of land planning in Switzerland. With the work on existing buildings becoming a main task of architects, the need for density will force a more radical approach: rather than conserving, buildings will be subject to deeper interventions. We look at renovations as a chance to create something new and unexpected. The 2020 swiss pavilion will be altered and enlarged through spatial and structural transformations.

Lecture in Chur next week !

Our new office in Biel/Bienne

We have a new office overlooking the city. We share the space with the graphic office atelier komma. Visit us in Höheweg 45 !

Weekend house in Osogna

Weekend house in Osogna

We are starting a new project for a small, 3 storey weekend house on the south side of the alps. The new building will replace a small stone barn in the village core.

Proposal for a bike shelter

A shelter made out of two large metal sheets, a simple structure of thin profiles and one well placed round hole.

Remodeling in Ostermundigen

Remodeling in White

A photograph of the completed building. The living room in the ground floor opens towards the garden.

House with a Blue Room

View from the construction site looking towards Lake Lugano and the San Salvatore mountain, on a foggy winter day.

Competition: Parish House in Ins

Remodeling in White

After two year of planning, we recently started the construction for the conversion of an protected building in Signau, Emmental. The interior of the existing building will be almost completely emptied. A new structure will fit a house developing over 3 floors. In the photograph: a detail of the staircase shaft connecting the three floors.

Remodeling in Ostermundigen

We are currently working on the renovation of an old plants nursery nearby Bern. Under one roof, the existing hall will accomodate a living area and an office area for a young family and their business.

Competition: Parish House in Ins

The roof construction is dimensioned for to the small spans present in most of the building’s rooms. In the main event space, the structural possibilities of this simple and rational construction are exceeded. Here, two additional elements - a beam and a pillar - support the roof, create a reference point and generate a feeling of monumentality in the space.

Remodeling in White

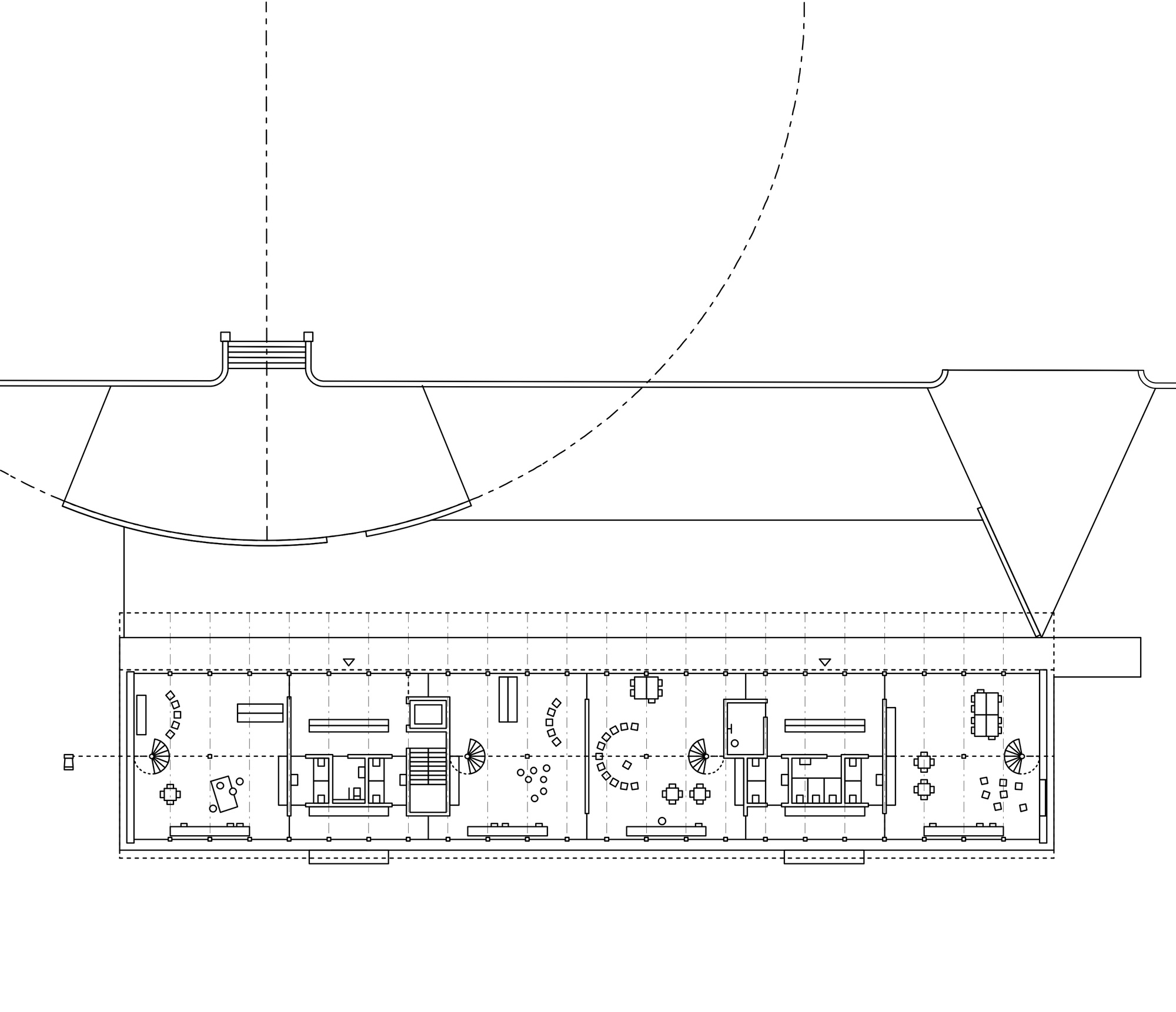
Furniture Family for an Apartment

When a building is finished, an architect is confronted with the physical result of thoughts and decisions made during the design process. For the first time, we can experience the built space on all its facets: the elements, the surfaces, the colours. We discover how the light falls in the space and what it feels like moving through the house. With each completed work we come across aspects that are neither planned nor considered: they simply appear through the physical presence of the built space. Fascinated by those discoveries, we are collecting a series of photographs that span between architecture and abstraction.

Furniture Family for an Apartment

In 2016 we designed a serie of furniture pieces for an apartment in Biel/Bienne. A family of six objects, for six different rooms. Each piece is unique, but based on identical constructive and architectonic principles. Instead of changing the spaces through a classic refurbishment of the building's substance, the idea was to change the appearance of each room by inserting characterful objects. Like a sculpture, each piece of furniture characterise the room where it stands.

Competition: Parish House in Ins

Competition: Restaurant Dählholzli

by JUNG is a collaboration between Jonas Ulmer and Nathan Ghiringhelli. We started to work together with this competition entry for the addition to the Restaurant Dählholzli in Bern. Nicely located along the Aare river, a white pigmented concrete structure sits beside the old wooden building.