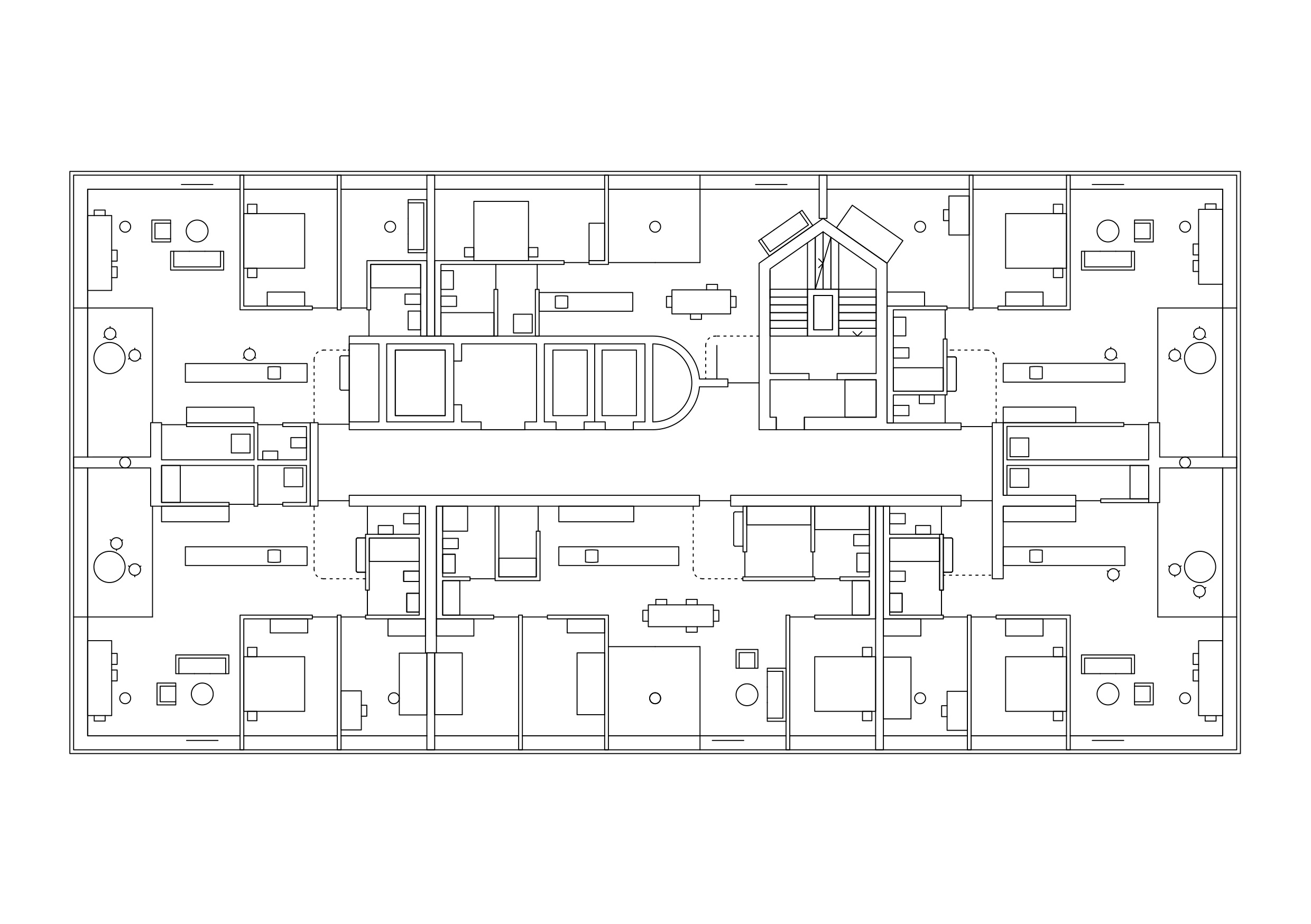
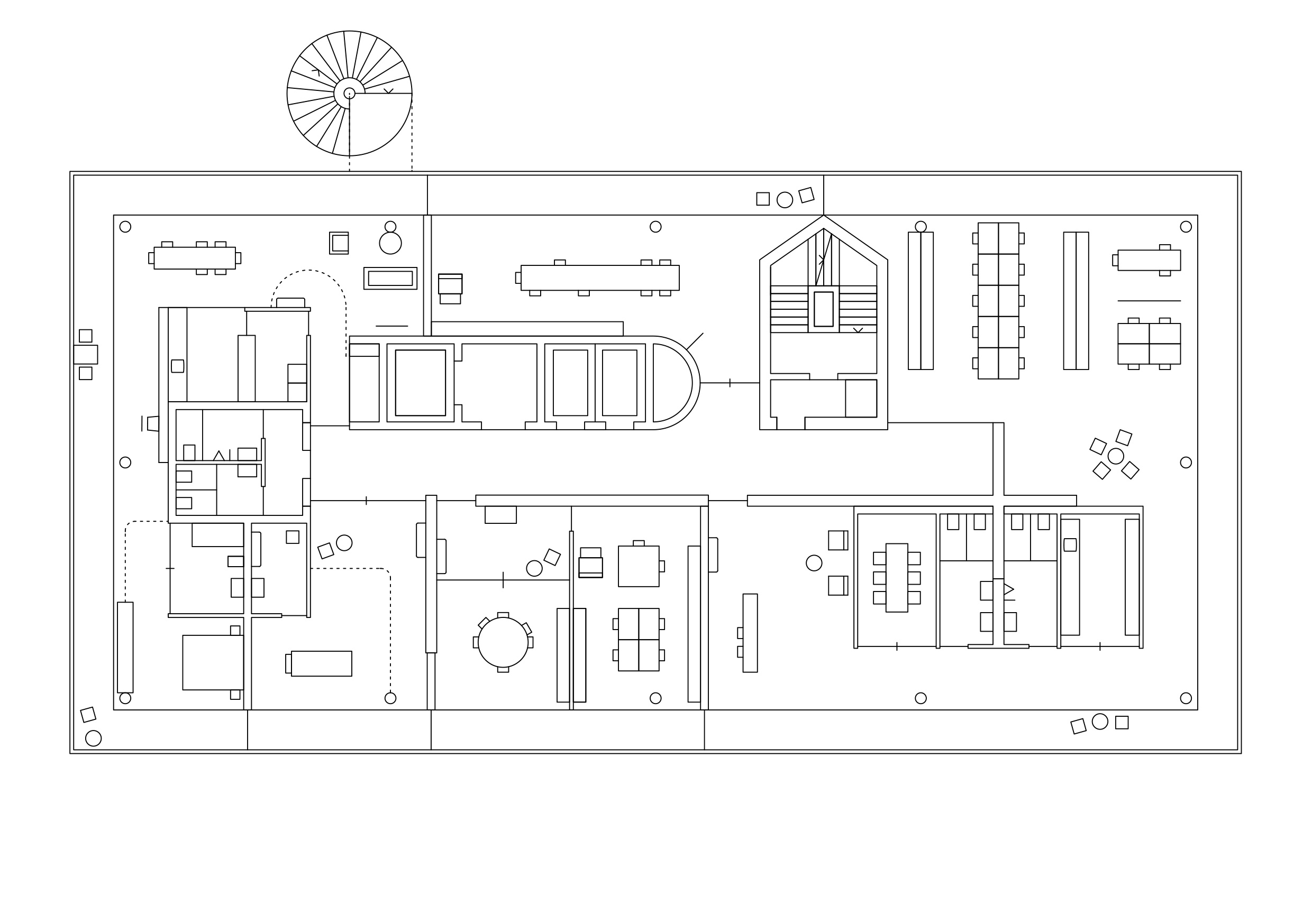
Placed along a main street leading into Baden, the multifunctional tower marks the limit between the agglomeration an the city center. The lower part of the building relates to the urban structure, offering flexible spaces for offices and various public functions. With its top part, fitting 11 floors of apartments, the 70m high tower acts as a new landmark for the city. An open floor marks the gap between the two parts of the tower, offering a space for recreation to the inhabitants.

Location: Baden, Switzerland
Project: 2019, invited competition (9 teams)
Client: Merker Liegenschaften AG, Baden
Building type: multifunctional tower (services, businesses and housing)
Architect: BY JUNG, Biel/Bienne
Structural engineer: Ferrari Gartmann AG, Chur
Technical systems: Frei+Partner GmbH, Baden

Site area: 2052 m2
Built area: 579 m2
Gross floor area: 15’663 m2
Hight: 62.50 m (17 floors + 3 floor underground)

Renderings: © BY JUNG