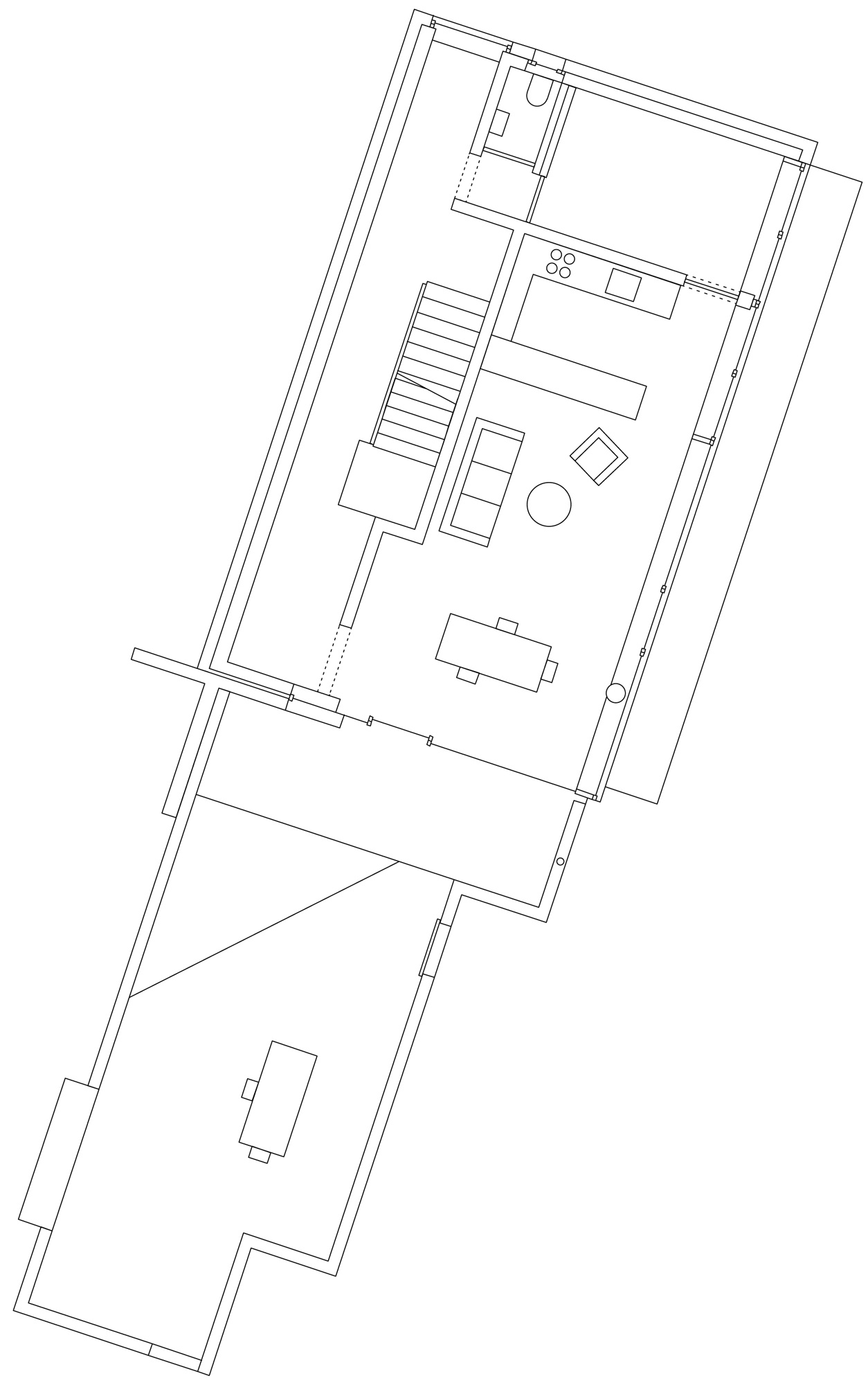
The site lies on a strong slope, in an area considered by the authorities to be in danger of landslides. An existing house of the 60’s has been demolished until the basement. The new house consists of three floors stacked on each other: the levels offer very different characters of space and material. The main living floor is characterized by a concrete wall protects and defines the house and the sitting area outside. Through this gesture, the living room appears much larger than it is actually build.

Location: Signau, Switzerland
Project: 2019-20, Construction: 2020-21
Client: Private
Building type: one-family house (renovation)
Architect: BY JUNG, Biel/Bienne
Construction supervisor: Bau & Renovationen Ulmer AG, Signau
Planner wooden construction: Dialog Holzbau AG, Signau
Structural engineer: Wüthrich Ingenieur und Planungs AG
Site area: 778 m2
Built area: 90 m2
Gross floor area: 239 m2
Photos: © Bela Zwygart